Емкости БВ под запас питьевой воды в сооружениях ГО из нержавеющей стали
| Обозначение | Рабочий объем | Размеры, мм | Масса, кг | ||
|---|---|---|---|---|---|
| Ширина | Высота | Длина | |||
| Бак для воды БВ-2 | 2 м3 | 973 | 2354 | 1731 | 740 |
| Бак для воды БВ-4 | 4 м3 | 1400 | 2354 | 1731 | 1130 |
| Бак для воды БВ-6 | 6 м3 | 2234 | 2354 | 1873 | 1442 |
| Бак для воды БВ-8 | 8 м3 | 2934 | 2350 | 1731 | 1790 |
| Бак для воды БВ-10 | 10 м3 | 3634 | 2354 | 1871 | 2115 |
| Бак для воды БВ-0,9 | 0,9 м3 | 725 | 2600 | 725 | 592 |
| Бак для воды БВ-0,25 | 0,25 м3 | 450 | 1824 | 450 | 209 |
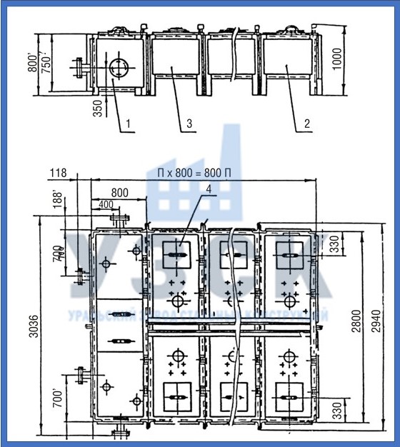
Фекальный бак МСБ выполняется кассетным, для приема стоков от санитарных приборов
Марка бака | Размеры, мм | Масса, кг, не более | Объем, м3 | ||
А | Б | В | |||
Бак МСБ-1/0 | 1600 | 1755 | — | 900 | 2,4 |
Бак МСБ-1/1 | 2400 | 2555 | 1х800 | 1225 | 3,6 |
Бак МСБ-1/2 | 3200 | 3355 | 2х800 | 1550 | 4,8 |
Бак МСБ-1/3 | 4000 | 4155 | 3х800 | 1870 | 6,0 |
Бак МСБ-1/4 | 4800 | 4955 | 4х800 | 2195 | 7,2 |
Бак МСБ-1/5 | 5600 | 5755 | 5х800 | 2520 | 8,4 |
Бак МСБ-1/6 | 6400 | 6555 | 6х800 | 2840 | 9,6 |
Бак МСБ-1/7 | 7200 | 7355 | 7х800 | 3165 | 10,8 |
Бак МСБ-1/8 | 8000 | 8155 | 8х800 | 3485 | 12,0 |
Бак МСБ-1/9 | 8800 | 8955 | 9х800 | 3810 | 13,2 |
Бак МСБ-1/10 | 9600 | 9755 | 10х800 | 4135 | 14,4 |
Бак МСБ-1/11 | 10400 | 10555 | 11х800 | 4455 | 15,6 |
УЗСК способен выполнить перечисленные изделия из стали высокого качества в короткие сроки.
Заполните форму заказа






